High Quality for Conveyor Idler Frame Design - V-Return Station – TongXiang

JIS Standard
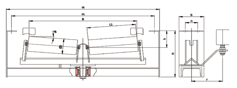
Belt  Width Type Dimension Z Channel
ΦD L1 m M h n b t r β=5°
B H
400 SAVR-400 89.1 220 640 690 100 60 120 6 150 584 290 M12 100x50x5
450 SAVR-450 245 690 740 634
500 SAVR-500 270 740 790 684
600 SAVR-600-1 320 840 890 100 60 120 6 180 783 305
650 SAVR-650 365 890 940 872
600 SAVR-600-2 114.3 320 840 890 800
750 SAVR-750 415 1040 1090 950 345
800 SAVR-800 440 1090 1140 999
900 SAVR-900 490 1190 1240 1099
1000 SAVR-1000 139.8 540 1290 1340 120 100 170 6 180 1217 390 125x65x6
1050 SAVR-1050 565 1340 1390 1267
1200 SAVR-1200 640 1490 1540 1416
1400 SAVR-1400 165.2 750 1730 1790 160 120 200 6 250 1614 550 M16 150x75x6
1600 SAVR-1600 850 1930 1990 1813
1800 SAVR-1800 980 2220 2280 2022 570
2000 SAVR-2000 1080 2420 2480 2222
2200 SAVR-2200 1180 2620 2680 180 150 250 9 250 2431 590 M20 200x80x7
2400 SAVR-2400 1280 2820 2880 2630